未嘉定制|113m²星河盛世,设计方案分享

项目:星河盛世
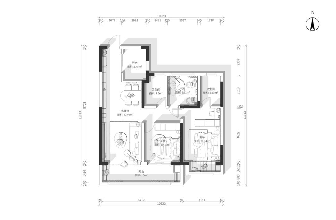
户型:3室2厅
面积:113m²
本案是一套标准的三室两厅两卫的户型,通过合理的空间规划设计和精细的装饰,营造出温馨、时尚、实用的居住环境。融合现代简约与舒适居家的元素,给业主提供宜居、宜人的生活空间。通过装修使得房子更时尚、舒适,并且能够满足日常居住的需求。
公共活动空间以入户餐厅客厅一体结构设计,在空间充分利用的基础上,让视觉显得宽敞明亮,同时满足各个空间的使用功能。
Entrance hallway|入户玄关

入户鞋柜作为家中的第一道风景线,不仅承担着收纳鞋子的功能,更是展示家居品味的重要环节。玄关鞋柜设计采用简约现代的设计风格,以白色为主色调,搭配木纹色,简洁大方。黑色柜体穿插式结构设计、木纹色格栅点缀。既有设计感,又满足装饰。鞋柜悬浮,进门换鞋方便。
Living Room | 客厅

客厅阳台打通,扩大空间,休闲阳台做了顶天立地阳台柜,收纳满分。视觉无限延伸,提升了空间的通透感,背景墙营造整屋高级感,采用电视内嵌进电视背景墙的处理方式。

主体色调就选中性色,白色、木纹色或灰色,让客厅充满简约、干净的感觉。石材花纹背板,空间高级感满满。
Restaurant | 餐厅

在家居设计中,餐边柜不仅是实用的收纳家具,更是彰显品位、丰富空间层次的设计亮点。让我们一同探索如何通过餐边柜的巧妙搭配,让家居空间焕发新的生活美学。

合理设计抽屉、展示柜、等功能区域既满足实际需求,又提升空间整体的美感。在餐边柜上设置柔和的照明,不仅提供实用的照明功能,还为餐边柜营造温馨的氛围,使用餐空间更加舒适宜人。
Master bedroom | 主卧

不腻味的空间、有质感的生活,才是前行的原动力,这是一个空间的理想化目标。主卧打破传统布局的局限,使空间更灵活有趣,动线更自由便捷能承载更多的新居家生活方式。主卧套房集起居、追剧娱乐、学习办公、梳妆区一体。美好的一天,启于爱意,归于舒适。玻璃衣柜做成隔断衣柜衣柜,视觉通透开阔、高级感满分。

稳重如山的铝合金框架结构,内置铝框玻璃层板,内置灯带。卧室显得不那么沉闷,层板加灯带,整齐的衣物显示轮廓,让人一眼就能看到自己中意的搭配, 平时有些小懒也没关系,肆意的人生才是大多数人的追求 。
Children's room | 儿童房

每一个小女孩都有属于自己的梦幻世界,而粉红色往往是那个世界里最温馨、最甜蜜的色彩。一个被爱包围的家,自然会为女儿打造一个专属于她的粉红色国度。在这个国度里,一切都是那么梦幻而美好。

墙壁被粉刷成了柔和的粉红色,仿佛融入了棉花糖般的甜蜜与温暖。窗帘、床单、地毯,甚至是小女孩的衣物和玩具,都被精心挑选成粉红色系,让整个空间充满了浪漫与温馨的气息。
Study | 书房

书房设计让阅读与独处成为艺术国在这个快节奏的时代,拥有一个宁静且美观的书房,能够为你的生活带来一丝宁静和专注。无论你是需要一个安静的地方来工作、学习,还是想要一个放松阅读的角落,书房都是一个理想的选择。

合理布局,让空间更实用,布局是关键!根据你的需求,合理安排书桌、书架和座椅的位置。确保光线充足,可以选择靠近窗户的位置放置书桌,自然光能够提高工作和阅读的舒适度。