未嘉定制|191m²和悦塘前,设计方案分享

项目:和悦塘前
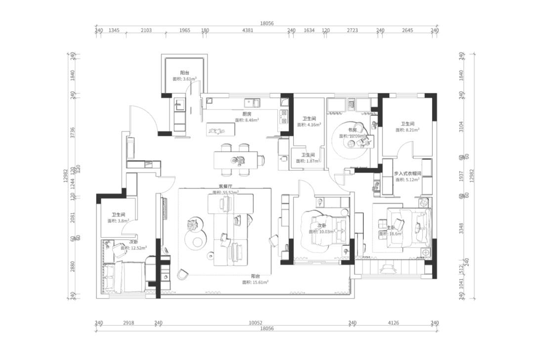
户型:4室2厅
面积:191m²
本案是一套四室两厅三卫的户型,基于屋主职业性质和生活习惯设计。去除多余的装饰和复杂的摆设,营造出宽敞明亮、舒适自然的居住环境。极简又张扬的设计风格,还原居住者丰富多彩的生活,提升居住质量和幸福感。
Entrance Hallway | 入户玄关

入户玄关鞋柜,巧妙地运用夹吊的设计手法。结合多种不同材质与体块,打破平面的单调秩序,形成新的视觉焦点。可以提高空间层次感,降低视觉上的压抑感。花色石材,搭配灰色背板和地台。酒红色层板跳色设计,融入灯光。独特的展示鞋柜设计,增加了空间的趣味性。
Living Room | 客厅

客厅以极简的线条,结合深浅层次的色彩搭配,形成强烈的视觉冲击。大面积的纯色墙板,搭配深色木格栅,营造出一种宁静的氛围。悬浮电视背景墙,弧形自然过渡,与阳台开放柜融为一体。阳台柜半开放式设计,岩板的背板与金属竖隔板连接,穿插红色层板,张扬又有格调。客厅到阳台打通,打破空间的界限,为室内融入更多的自然气息!

电视墙的对面是一组沙发背景书柜,拓展客厅的功能属性。书柜书桌一体式设计,纯色门板搭配深灰色开放格,以红色点缀,为整个空间注入活力。石材花纹背板,金属发光层板,悬空上翻门吊柜,超长的穿插式书桌,营造出一种独特的办公和学习的氛围。在这个理想的会客厅里,自然的放松,灵魂得到滋养。书房与客厅一体式设计,用更开放式的布局,引导居住者去探索更自在,惬意的生活方式。
Restaurant | 餐厅

餐厅是一家人的温馨,是亲朋相聚的欢乐所在。开放式厨房与玻璃移门结合,客餐厅与厨房融为一体。右侧是一组餐边柜,餐边柜平嵌冰箱,上方做玻璃酒柜。悬空玻璃酒柜内退设计,上不到顶,避开空调回风口。餐边柜的抽屉外置,台面和背板采用岩板,中间嵌入极简钢板。

这个空间在家中最具仪式感,每天的一日三餐,特殊的日子与爱人小酌庆祝,闲暇的时间与亲友举杯相聚,都是幸福时光,把生活的仪式感交给空间。
Master Bedroom | 主卧

主卧空间的设计,更需要注重色彩的搭配。米色、灰色和黑色的组合,营造出宁静舒适的氛围,和意式极简的高级感。浅灰色的色调,搭配柔软的床品,以一种舒缓优雅的画面闯入视线。床头做背景墙,床尾是斗柜梳妆台组合,侧面是步入式衣帽间。衣帽间采用格栅移门,将原有空间的功能区域重新划分提升,每次步入都有一种仪式感。

Children's Room | 儿童房

儿童房采用极简时尚的设计风格,柔和的色调和天然的材质相结合。每个空间采用同色系的设计,视觉统一,让人无法抗拒的秩序。绿色系床靠、床品、单椅,充满生机和活力。飘逸的雪纺白纱,渲染纯洁无瑕的柔和,带给人很强的治愈感。


女儿房采用梦幻紫色系,如童话中的魔法色彩,为空间注入无尽的魅力。淡紫的床背景散发着柔和的光芒,宛如梦幻的星云。米色的窗帘随风轻舞,像是精灵的翅膀。搭配米色的床品和装饰,让孩子的梦想在这里自由翱翔,开启一段充满惊喜与欢乐的童年之旅。

Study library | 书房

充满现代气息的书房,是文艺小资们的梦想。摒弃传统书柜,做悬浮式书柜,开放层板搭配仿布纹背板,极简大气。书柜的开放区采用灰色金属层板,上下做氛围灯光点缀,可以摆放书籍和个性化的摆件。下方做多组大抽屉,扩充收纳空间。书房的中间区域,书桌与书柜连接,一体式设计,整个空间营造出非常惬意的阅读空间。

苏州 上海 无锡 杭州 扬州 南通 西安 济南
展厅开放参观,请提前预约
