未嘉定制|147㎡保利星湖,设计方案分享
项目:保利星湖
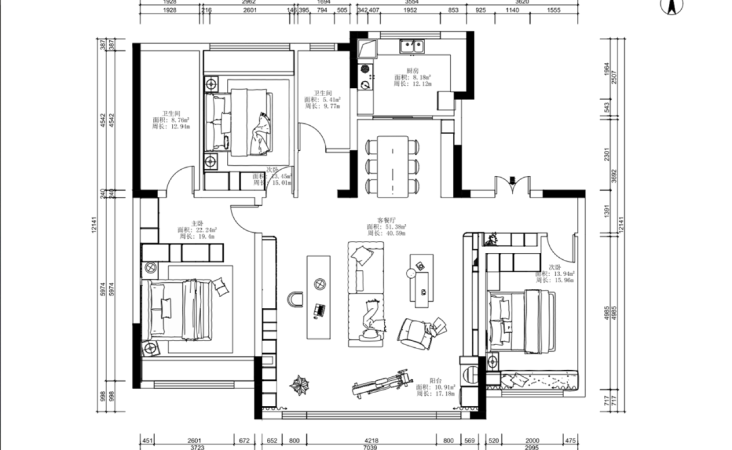
户型:4室2厅2卫
面积:147m²
意式极简的精髓,在于对“精致克制”的极致表达。本次设计以米兰现代家居美学为蓝本,用几何线条、质感材质与柔和光影,在都市核心区营造出“静奢感”满分的居住空间,让家成为卸下疲惫的优雅容器。
Living Room | 客厅

以暖灰色、浅咖色、米白色为空间底色,如同米兰街头的建筑色调般优雅沉静;搭配天然大理石(纹理如流动的艺术画)、哑光金属(线条利落又高级)、真皮与细腻实木板材,让每一处材质都成为“低调的主角”,自然流露意式工艺的精致感。

开放式布局+无主灯设计,让空间更显通透明亮。电视背景墙采用“悬浮大理石+金属格栅”组合,暗藏灯带在夜晚勾勒出柔和层次;方块造型的布艺大沙发,柔软触感与利落轮廓完美平衡,搭配黑色艺术感落地灯,松弛感与设计感同时拉满。

现代轻奢客厅,大理石肌理背景墙借灯带晕染高级感,浅米色方块沙发柔化空间,黑棕系圆形茶几与艺术感落地灯相衬,质感与光影交织出雅致氛围。

现代简约客厅,暖棕木质与冷灰柜体打造电视墙,暗藏灯带衬出层次;大理石基底、艺术摆件点缀细节,黑棕圆形茶几配绿植与金属雕塑,线条灯与透明家具增添轻盈感,质感与光影交织出雅致气场。
Restaurant | 餐厅

定制餐边柜“藏露有度”:嵌入墙体的柜体,用玻璃与实木拼接的柜门,在暖光映射下透出精致感;大理石餐桌搭配皮质餐椅,线条简约却充满雕塑感,上方线性吊灯精准打光,让用餐时刻也像在米兰小馆般充满仪式感。
Master bedroom | 主卧

延续整体优雅调性,床头背景墙采用“皮革软包+木饰面”拼接设计,触感细腻又显高级;顶天立地的衣柜选用同色系极简门板,隐形把手让立面更显整洁纯粹;窗边预留休闲角落,竖百叶过滤后的光线温柔洒入,营造出静谧治愈的休憩氛围。
Second Bedroom | 次卧室

暖棕与浅灰铺就柔和底色,玻璃衣柜嵌灯带显通透,悬浮柜体借灯光实现藏纳与展示,潮玩点缀添个性;一体化书桌与床具自然衔接,柔光吊顶呼应质感床品,实用与美学共生,营造雅致休憩场域。

米灰与深棕交织出柔和基调,吊顶灯带、艺术吊灯营造温馨光影,几何装饰画点睛墙面;侧边带灯收纳柜实用又精致,飘窗与质感床品相衬,于简洁中尽显雅致疗愈感。
