未嘉定制|160m²笠泽之星,设计方案分享

项目:笠泽之星
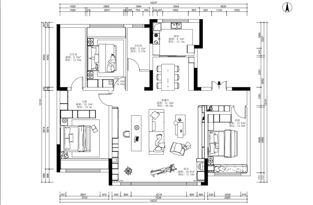
户型:3室2厅
面积:160m²
本案是一套三室两厅一厨两卫的户型,怀揣着对家的热爱,大家都在追求理想中的美好生活不仅是为了改造居住空间,更是为了定制独一无二、属于自己的生活方式。
Entrance hallway|入户玄关

入户玄关鞋柜可以放置摆件器、绿植等提升幸福感的小物件,深色格栅和石材搭配,每次回家都充满仪式感。开放区域加入灯带,空间更富层次感,更显高级。
Living Room | 客厅

采光、宽敞的居住空间是日常幸福感的保障,可以让人放松神经,产生积极情绪。在客厅改造中,我们选择拆除原始移门,将阳台并入室内扩大使用空间。开放式布局,空间利用更加灵活,同时可以让家庭成员在共享空间中相互陪伴。

电视背景墙的设计融合了装饰性与功能性,定制柜则与木格栅保持同色系,格局整洁有序,让空间融为一体,同时很好地补充了客厅的收纳功能。

黑胡桃木饰面装饰墙面,提升空间质感,同时赋予室内沉稳而深邃的氛围。阅读、写字,时而驻笔沉思,时而笔走龙蛇,在静谧的空间内彻底放松身心。书柜以悬浮设计手法搭配格栅,石材背景板等。深浅颜色搭配,多材质多元素运用,处处展示业主的生活品味。

Restaurant | 餐厅

为避免视觉上的压抑感,我们没有设计通顶的餐边柜,而是选择根据户型特点,定制上下分开柜体,确保每一寸面积都得到充分利用,使餐厅成为家中一处实用且功能强大的空间。
Master bedroom | 主卧

白是无暇,是纯粹,是一切颜色的开始”。卧室以白色为主,轻盈通透,为空间创造无限自由的感觉。深色床背景搭配软装点缀,色彩碰撞让视觉上更具张力。悬浮式衣柜设计与床背景融为一体,具有设计感,同时增添了空间的通透性。
Second Bedroom | 次卧室

传统落地式床头柜藏灰严重难打理,还容易与衣柜门“打架”!所以我们在次卧做了背景墙+衣柜一体化设计,可以扩大收纳空间,打扫起来也更为方便。色调方面,暖白与深灰的碰撞让卧室看起来少了几分单调,多了几分高级。
Children's room | 儿童房

儿童房空间设计除了保证正常功能使用之外,色彩活泼可爱。不同色调下的软装搭配,尽情释放和展现天性。空间是孩子的堡垒,所以明亮、温暖是必要基础。以软装为主,硬装为辅,尽量挑选灵活可变化的边柜、书桌,可发挥创造力的同时,也更便于成长过程中家具的替换。
苏州 上海 无锡 杭州 扬州 南通 西安 济南
展厅开放参观,请提前预约
