未嘉定制|114m²龙湖青云阙,设计方案分享

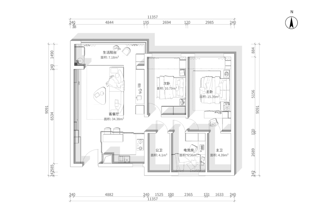
项目:龙湖青云阙
户型:3室2厅
面积:114m²
本案是一套三室两厅一厨两卫的户型。简约至上,品味非凡一一现代极简风格设计在这个繁华喧嚣的世界里,让我们拥有一片宁静的空间,让心灵得以放松和滋养。本套案例以其简洁、清晰、大方的特点,为我们营造了一个纯净、舒适的居住环境。
Living Room | 客厅

一个空间中,家具和摆设越多,对生活的束缚也就越大。轻松开阔的空间,反而让居住环境变得更加精致,生活效率更高,内心也更加轻盈自在。线条简单、轮廓分明地勾勒空间感。

深灰色悬浮电视背景柜,白色花纹石材与木纹色格栅元素构成灵感般的抒情,引导情绪蔓延生长。自然纹理勾勒悬挂建筑体,互成独立关系,又能和谐一体。一抹深绿灵动于静谧之中,实现感官互动,趣味丛生。

沙发背景柜,也是餐边柜。冰箱平嵌式一体结构,以深灰色为主调,搭配浅色门板以及木纹色吊柜,简约的色彩搭配,营造出温馨大气的空间氛围。满墙柜餐边柜设计增加功能性的同时,同时又满足空间设计的美观性。
Master bedroom | 主卧

主卧,以肤感细腻的肌理淬炼出亲密的触感体验,悄然释放休憩空间精奢的质感之美。浅灰色半高床背景搭配暖色光源,简洁大气,空间氛围拉满。

床头衣柜结合金属艺术玻璃隔断,对空间的分隔,同时又保证空间的采光通透性。
Second Bedroom | 次卧室

次卧面积不大,但功能俱全,床、衣柜,基本的房间功能都能拥有!关键是视觉上清爽干净,在空间有限的情况下,还把颜值和实用性都具备。

房间整体风格偏现代简约,奶白色的衣柜做一门到顶设计,给人一种干净整洁感,简单清爽。平时可以坐在飘窗上看书,或者学习累了,在这边休息一下都是非常惬意的~~~
Study | 书房

榻榻米设计,小卧室的最佳选择!一房多用,美观又实用,让你的小空间焕发无限魅力。

榻榻米,不仅是一种床,更是一种生活方式。它以简约的线条和舒适的质感,为你的卧室增添了一抹温馨的氛围。无论是休憩、读书还是与朋友小聚,榻榻米都能满足你的需求。一房多用的设计理念,让你的小卧室焕发新生!

苏州 上海 杭州 扬州 常州 宁波 绍兴 嘉兴 南通 西安 济南
展厅开放参观,请提前预约
