未嘉定制|141m²龙湖青云阙,设计方案分享

项目:龙湖青云阙
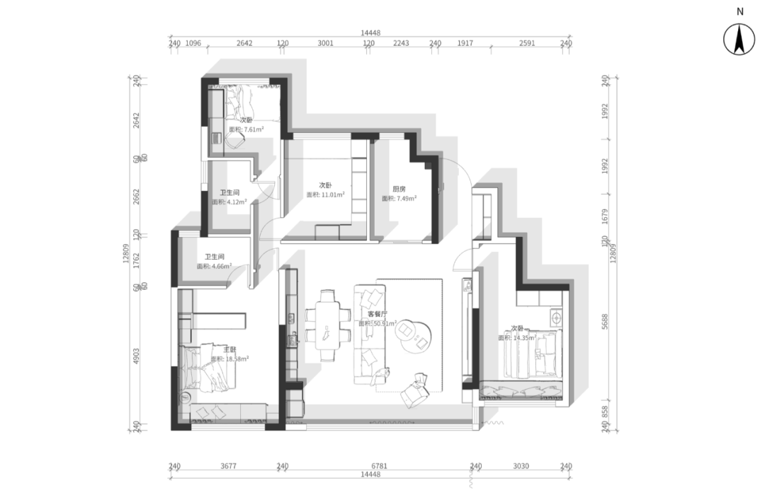
户型:4室2厅
面积:141m²
本案是一套四室两厅一厨两卫的户型,通过艺术的空间布局、和谐的材质与色彩搭配,以及细节与功能的融合,为我们提供了一个高级感的居住环境。在这里,每一个角落都散发着优雅与精致,每一次生活的细节都彰显着高级与舒适。
Shoe cabinet | 鞋柜

进门入户满墙鞋柜中间镂空,可以收纳家门钥匙、零钱和手机等小物件。简约风格的鞋柜,可以整齐地摆放鞋子,满足收纳。选择一个柔和的灯光,可以为你的玄关增添温馨的氛围。
Living Room | 客厅

意式极简电视背景,悬浮式设计,普拉达绿石材搭配纯色木饰面,木格栅点缀,为高端生活空间注入了一丝不苟的奢华感。深灰色背景柜穿插木纹色,达到空间延伸的效果,每一处细节都透露出对品质的追求,让每一次触摸都成为享受。背景柜造型设计,丰富空间层次的同时,也给客厅空间增添了一些收纳功能。

餐边柜的设计要考虑到实用性和美观性的平衡。阳台通铺,餐边柜洗衣柜一体结构,自然和谐。收纳空间设计的十分人性化。超薄金属层板放一些小摆件,各种杯子茶叶 咖啡等都可以轻松收纳,保持家里整洁有序。
柜门全部采用无把手设计,极简金属玻璃门,石材背板和台面,极简到极致。餐边柜还设计了灯光,增加光的层次感,每次在这里做饮料、泡茶都十分惬意温馨 ~
Master bedroom | 主卧

主卧室床背景,普拉达石材结合深色木格栅造型设计,为卧室空间带来了一份不言而喻的高级感。飘窗设计深色开放格,增加空间装饰感。

悬浮式床头柜和衣柜一体,空间通透有层次。整个空间的造型以及颜色搭配,让空间散发着自然的光泽与温暖。
Second Bedroom | 次卧室

高级感的设计,往往在于简约而不简单的线条与构造。意式极简衣柜,以其简洁的线条和优雅的造型,为卧室空间勾勒出一种宁静而深远的美感。没有繁复的装饰,每一笔都是精心设计,旨在创造出一种和谐而平衡的空间感。

在次卧室的设计中,我们追求的是一种简约而不简单的生活哲学。通过精心的布局、和谐的色调和细节的奢华质感,打造出一个既高级又舒适的私人空间。在这里,每一次的休憩都是一次心灵的洗礼。
Tatami | 榻榻米

榻榻米房在色彩运用上追求低调的奢华。以中性色调为基底,如优雅的灰色、温暖的米色,搭配上深色的木质元素,形成色彩上的层次感。这种色彩搭配不仅能够营造出宁静、舒适的氛围,更能体现出居住者对生活品质的高要求。

空间布局上,榻榻米房注重空间的开放性和流动性。通过合理的规划,不仅是睡眠的区域,也可以是休闲、阅读或冥想的空间。例如,在旁边设置一个小型的阅读角,配以柔和的灯光和舒适的座椅,让我们在忙碌之余能够享受片刻的宁静。此外,榻榻米下的储物空间设计,既实用又节省空间,让生活更加有序。
Cloakroom | 衣帽间

衣帽间是设计简洁,细节方面的美学,功能强大,淋漓尽致地完成了现代人们需要的生活方式。在开放式衣柜中,镀膜玻璃进入让通透成为可能,透出有序而安逸的现在空间感,打破了常规柜体的沉闷感,呈现全新自由的概念。深色开放柜,方便拿去衣物。飘窗木饰面设计,空间感十足!

色彩搭配上追求雅致与和谐。以中性色调为主,如简约的白、优雅的温暖的木色,营造出一种静谧而高贵的空间氛围。色彩的低调使用,不仅避免了视觉上的杂乱无章,更让每一件衣物都成为了空间中的艺术品。在这样的衣帽间中,每一次挑选衣物都变成了一场视觉与感官的盛宴。

苏州 上海 无锡 杭州 扬州 南通 西安 济南
展厅开放参观,请提前预约
