未嘉定制|178m²龙湖青云阙,设计方案分享

项目:龙湖青云阙
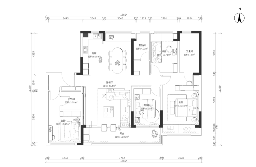
户型:4室2厅
面积:178m²
本案是一套四室两厅一厨三卫的户型。家是避风的港湾,家是温暖的依靠,家是心灵的乐园。未嘉为我创造出了我梦寐以求的家。本套案例以其简洁、清晰、大方的特点,为我们营造了一个纯净、舒适的居住环境。
Living Room | 客厅

这套案子里我们把阳台打通,纳入客厅形成一体式开放格局。不仅优化了采光和通风也使整个空间开阔通透瞬间获得了大平层的快乐。

原始交标电视背景造型不变,设计了沙发背景墙。木纹色木格栅搭配纯色护墙板,层次分明又大气。
Restaurant | 餐厅

精心布置的餐厅,让每一顿饭都充满家的温暖和幸福的味道。交标厨房联动移门,搭配岛台,空间格局宽敞明亮。餐厅木纹色护墙板搭配木格栅,质感满满。借用飘窗的高度差,设计了一组飘窗柜。可以摆放榨汁机,咖啡机等。
Master Bedroom | 主卧

大平层的主卧不是塞满才显大!交给悬浮隔断柜,隔开功能区,打造合适的洄游性动线。适当留白的主卧大套房,更显简约高级。主卧进门正对面是一组玻璃衣柜门,空间通透,有延伸感。镂空金属玻璃隔断,隔出睡眠静区,休息不受打扰。木纹色搭配深灰色,不仅平衡了空间冷感色调,还能做意想不到的包包收纳区。

床背景木饰面深浅搭配的,运用木格栅原色,搭配仿石材花纹木板,空间丰富。木纹色木饰面和飘窗柜融为一体,有延伸感。
Second Bedroom | 次卧室

用简单的配色和造型,也可以搭配出时尚、高级,不会过时的装修。卧室主体采用深灰色结合粉色的配色,高级配色,简单干净轻松又不失内涵。

卧室衣柜半开放式设计,实用性强,利用率高,拿取次进衣方便,深灰色床背景搭配粉色墙布,空间氛围感拉满。
Study| 书房

利用整墙定制一体式书柜+书架,书架采用悬吊式设计,充分利用垂直空间,将书籍/摆件错落有致地陈列字,形成空间阵列,打造多层次的展示空间。采用开放式书架与封闭书柜组合,搭配纯黑背板,轻松提升空间轻奢质感,横向内嵌灯带营造氛围感,提升书柜视觉效果。吊柜玻璃门搭配横纹柜门,空间质感高级。

苏州 上海 无锡 杭州 扬州 南通 西安 济南
展厅开放参观,请提前预约
